
TOUCHABLE WELLNESS
Design to make you feel at home.
Metro Detroit

Residential and commercial
Choose this service if you want to work on your entire house or multiple rooms, and you want support from the idea to the realization.What to expect:Questionnaire & space study: detailed definition of the scope, flow analysis and measurements
Design: tailored design starting from conceptual ideas and mood boards, to complete and detailed 2d and 3d representation
In site operation: construction and installation of all the finishing and furniture.
Compass Guide: summary of the journey and a few directions for the future as palettes and styles.

You bring one problem, I guide you to the next step and give you direction.
All consultation can be transformed into a full project if you need more time or a complete service.Refresh your space, it is the right service for you want to change the vibe of your space, letting the energy flow and giving your space new vitalityEasy moving, easy transition, I can help you adapt your furniture, art and objects to create a supportive and fluid space in your new home.One room service, deep focus on one room, we can work on finishings, palette, furniture.Interior Landscape, selection of plants and flowers for interior space to reconnect you and your home to nature.What to expect:
Questionnaire & pictures, before the first meeting I'll ask you to answer a few question and send me a few pictures, video or blueprints so I can come prepared to the meeting and we can do the best use of the time together.Meeting: quick review of the questionnaire and scope of the project, design and decision making.Mini Compass guide: a summary of the meeting, with all the decision and approved ideas discussed during the meeting, and guidance for you to take the next step working on your project.
Tell us about your project, scope, size and location!
Schedule a free call with us:

The project is a two-story apartment. The first floor features an open-plan layout, encompassing the entrance, kitchen, living room, access to the stairs, a bedroom, and a bathroom. The second floor includes a bedroom, a windowless storage room, and a bathroom.The client, L., is a young professional purchasing his first home. Living alone, he seeks a space that supports his social life while giving him the freedom to embrace this new chapter in his life.To meet these goals, we opened up the space on the first floor, allocating more room to the living and dining areas. A brick veneer wall was introduced to visually connect the two levels. The selected materials and color palette create a distinct ambiance for each floor: the first level features bold tones of black, dark grey, and red, while the upper floor softens with warmer hues of brown, white, and blue.
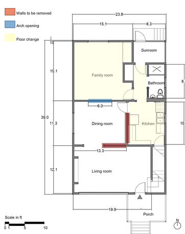
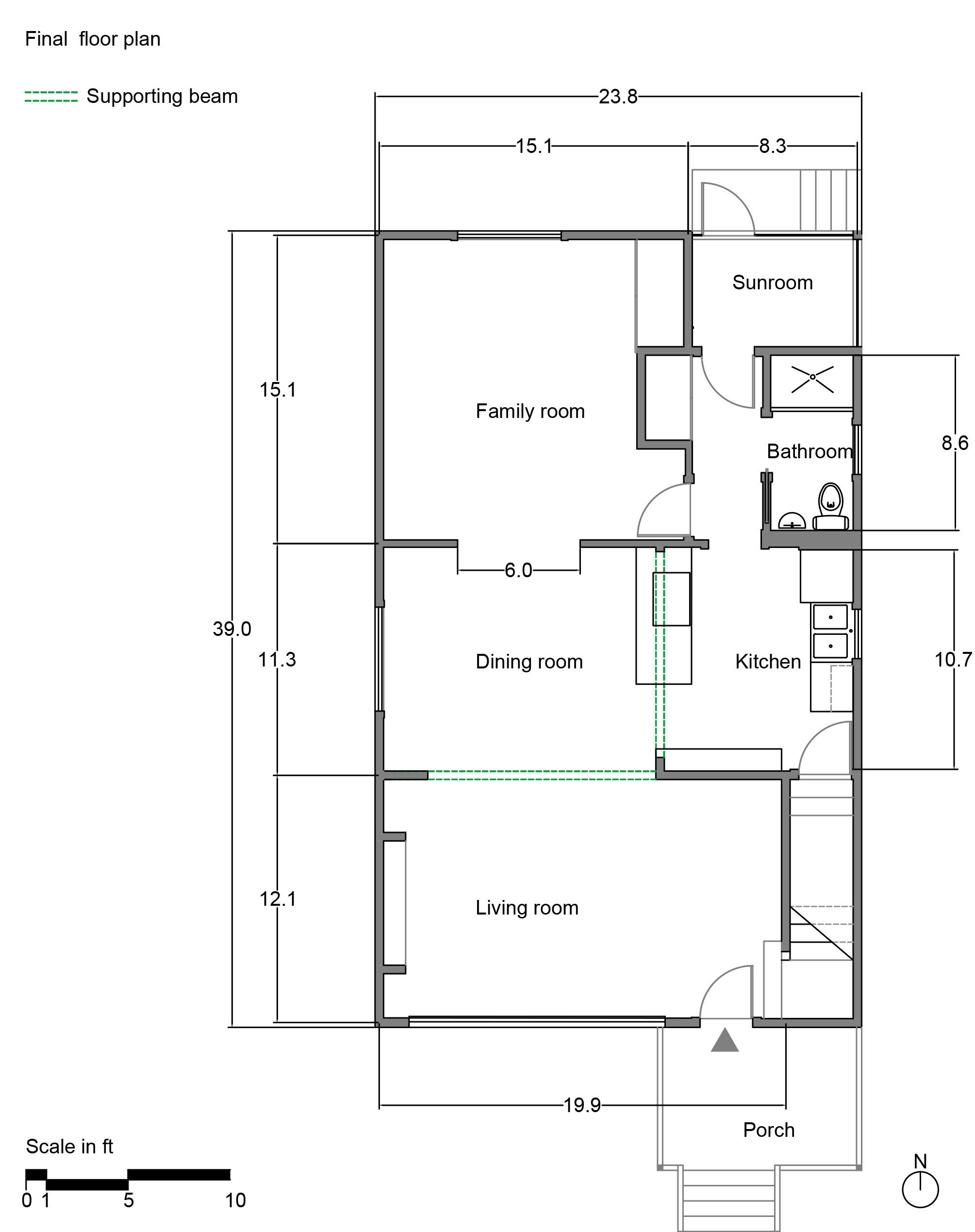
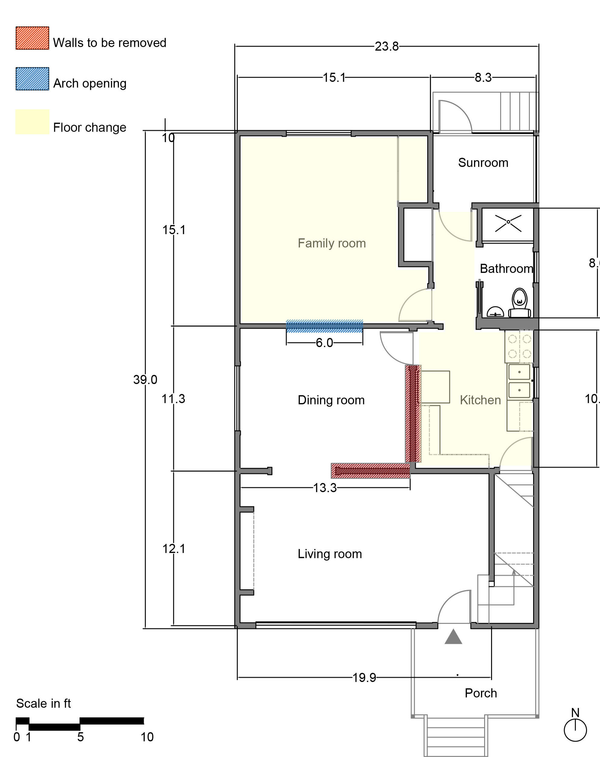
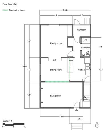
The house is a one-hundred-year-old, two-story building with an addition on the lower floor built during the 90s. The previous owner wanted to avoid selling the house to a company that would have torn it down and rebuilt it because their desire was to find someone who would appreciate and take care of it.That was the spirit a couple expecting their first child had when they bought the house. They wanted to make the space ready to welcome their growing family, ready to fit family and friends, a big Christmas tree, and lots of adventures.The plan of the first floor was labyrinthine, as the addition communicated only with the kitchen through a hallway. The addition was a very big and dark room compared with all the other rooms, as it had only one window facing north. The position of the doors between the entrance, the dining room, and the kitchen made it difficult to place furniture. The kitchen had a fake ceiling with strong lighting only in the center of the room, which made the space feel smaller and not bright enough to work in.The proposal considered how to make the energy flow better from the entrance through the first floor, opening the space and rebalancing the light. The beams and walls and the changes in the flooring suggest three different spaces: the first living room, close to the front window, a space to share with guests and to connect with the world outside; a central dining room, close to the kitchen, as the heart of the house; and a big, cozy family room, where to play music and spend time facing the backyard. The family room can be closed with a double barn door, not visible from the entrance, that gives privacy to guests.The kitchen and the dining area are divided by a bar that keeps the communication between the two areas.

Fra Cattabiani Design provides interior design and renovation solutions through the concepts of Healing Architecture and Feng Shui.
Our mission is tailoring the space around you to create a supportive and safe space where you can be yourself and grow ideas.The founder, Francesca Cattabiani, achieved her Master Degree in Architecture in Ferrara, Italy. Her experience expanded in Mexico, Italy and USA, where she worked in residential and commercial projects, new constructions and restoration of historical buildings.
Her mission is to help you step by step to clirify your needs and translate them into a supportive design for your changing life.